Honolulu Condos For Sale The Hawaii State Condo Guide

WESTVIEW PLAZA

Your Hawaii State Condo Guide Realtor
Marty Sanders (RA) Signature Homes Island Style Honolulu Hawaii 808-222-3804
Contact Marty Sanders (RA) Signature Homes Island Style Honolulu Hawaii 808-222-3804
or email martysanders808@gmail.com or Call 808-222-3804
CONDOMINIUM NAME
WESTVIEW AT MAKAKILO HEIGHTS
ADDRESS
click address for satellite image
CITY

KAPOLEI

ZIP CODE
96707
 
1-9-2-019-068
LAND AREA
10.82 ACRES
NEIGHBORHOOD

MAKAKILO UPPER

ZONING
A-1
# OF BUILDINGS
13
# OF FLOORS
2
# OF UNITS
320
YEAR BUILT
1993
VIEW
GARDEN
WATER FRONTAGE
NONE
FLOOD ZONE
D
MANAGEMENT COMPANY
CERTIFIED MGMT INC
CONTACT
CANDACE VILLARMIA
PHONE #
808-836-0911
RESIDENT MANAGER
MANAGERS PHONE #
VACATION RENTAL ALLOWED
OWNER OCCUPANCY
47%
FHA & VA APPROVED CONDOS
CONSTRUCTION
CONCRETE SLAB / WOOD
TENURE
FS
LEASE EXP DATE
--
RENEGOTIATION DATE
--
LESSOR
--
ARCHITECT
DEVELOPER
SCHULER HOMES INC
EXTRA FEATURES
BBQ AREA
--
SWIMMING POOL
--
HOTTUB / SPA
--
PUTTING GREEN
--
RECREATION AREA(S)
--
CABANA / CLUB HOUSE
--
EVENT / MEETING ROOM(S)
--
EXERCISE ROOM
--
TENNIS COURT
--
VOLLEY BALL
--
WALK TO BEACH / BEACH ACCESS
--
GOLF
--
SHOPS / RESTAURANTS
--
ELEVATOR
--
GATED COMMUNITY
--
SECURITY BUILDING
--
SECURITY GUARD
--
AIR CONDITIONING
--
CABLE PAID BY ASSOCIATION
--
PLAYGROUND
--
STORAGE
--
LOCAL AREA SCHOOLS  
ELEMENTARY
INTERMEDIATE
HIGH SCHOOL
PETS
PETS
YES
 
APARTMENT FURNISHINGS
DISHWASHER
YES
REFRIGERATOR
YES
RANGE / OVEN MICROWAVE
YES
INDIVIDUAL WASHER / DRYER
YES
WATER HEATER
YES
COMMUNITY LAUNDRY ROOM
--
 
 
 
 
   
   
   
FLOOR PLANS
BEDS
BATHS
INTERIOR SQFT
TOTAL UNITS
 
2
1
649
20
 
2
1
657
12
 
2
21
742
84
 
2
2
750
41
 
2
2
789
44
BEDS
BATHS
INTERIOR SQFT
TOTAL UNITS
 
2
2
796
24
 
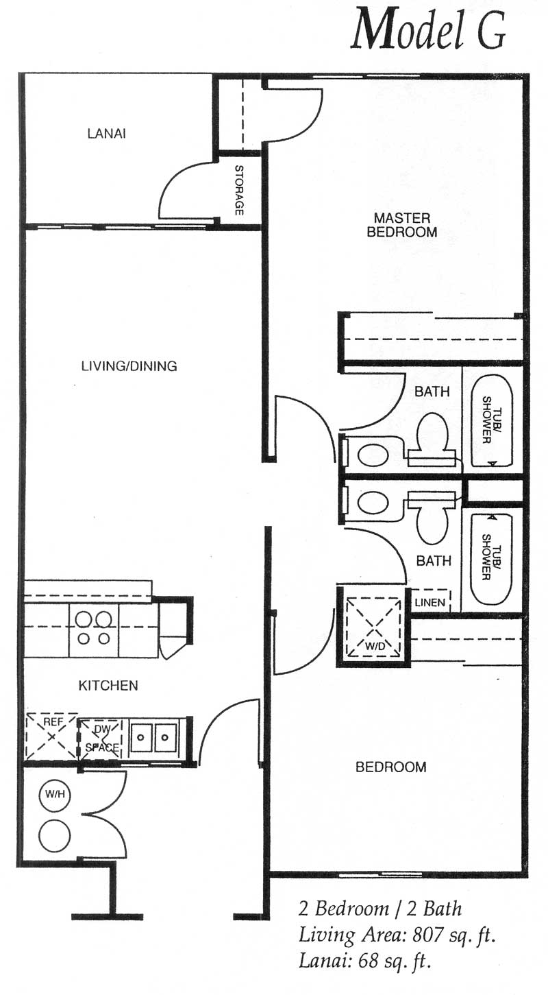
2
2
807
32
 
2
2
843
32
 
3
2
980
32
         
 
 
Thank you for using The Hawaii State Condo Guide. Marty Sanders (RA) & HalbergCS developed this product to help real estate professionals and consumers find, analyze and compare condominium and co-op properties in Hawaii .  The properties are listed in alphabetical order by TMK (Tax map Key) Zones and include in the Oahu (City and County of Honolulu) section; the following are some of the areas we cover: Metro Honolulu, Salt Lake, Kalihi, Kam Heights, Nuuanu, Downtown, Kakaako, Pacific Heights, Punchbowl, Diamond Head, Hawaii Kai, Aina Haina, Niu Valley, Kapahulu, Kaimuki, Kahala, Lanikai, Kailua, Kaneohe, Kaaawa, Hauula, Laie, Kahuku, North Shore, Haleiwa, Waimea, Central, Wahiawa, Leeward, Waianae, Maili, Nanakuli, Makaha, Aiea, Pearl City, Ewa, Ewa Beach, Kapolei, Makakilo, Waipahu, Royal Kunia, Mililani, Halawa, Manana, for more...see the Oahu Condo Page.
We strive to provide as complete data as possible about each condo and co-op listed including but not limited to Name, address, zip code, area schools, owner occupancy, # of buildings, floors, # of units, floor plans, amenities, inclusions, pets, tenure, tmk, land area, etc…
We hope you have found this Oahu guide useful and will recommend it to your friends and colleagues.  Please also see our sections on The Valley Isle of Maui, The Friendly Isle of Molokai & The Pineapple Island of Lanai, The Big Island of Hawaii and The Garden Island of Kauai.
all data contained in this website gathered from public sources and has not been verified by website owners.
This website built and maintained by HalbergCS. This website is owned by Marty Sanders (RA) & HalbergCS © 2015